Available
A ready-made investment opportunity with long-term tenants in situ, offering spacious living across two floors. Ideally located near local amenities with green frontage and private outdoor space.

3 Bed Terraced House For Sale Freehold

£70,000

Grimsby, NE Lincolnshire

  • 3
  • 1
  • 2
Key Features
  • Sold with tenant in situ, generating £7,830 per annum
  • Two spacious reception rooms and a large kitchen
  • Three bedrooms and a family bathroom upstairs
  • Front and rear yards for private outdoor use
  • Green area running along the front of the terrace
  • Convenient DN32 location close to shops and transport links
Property Description
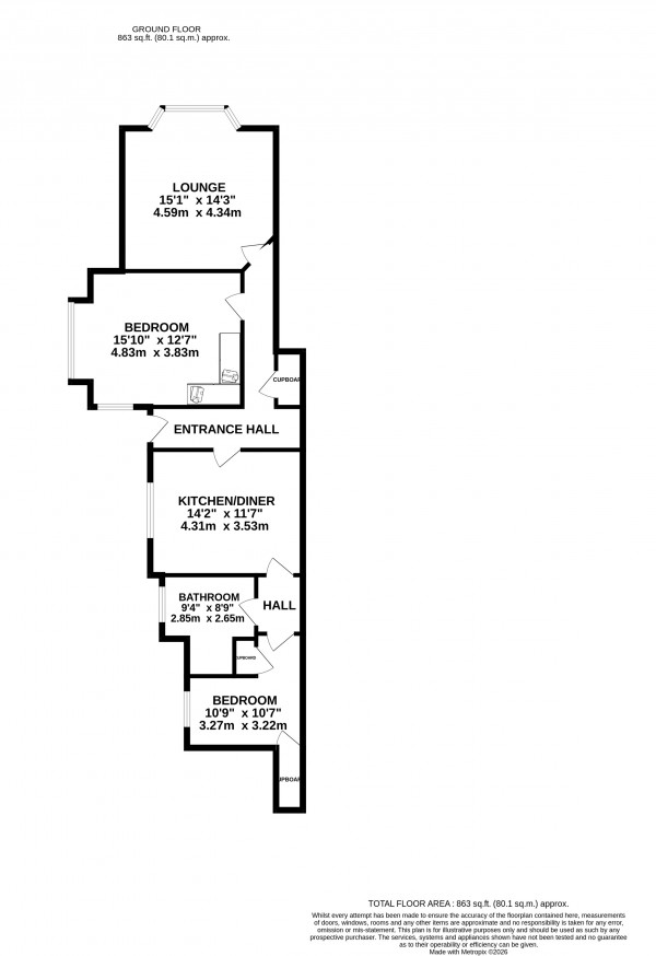
Inside: This well-proportioned two-storey home offers a practical and inviting layout ideal for long-term rental investment. The ground floor features a welcoming hallway leading to two spacious reception rooms, providing flexible living and dining arrangements. A generously sized kitchen spans the rear of the property, offering ample workspace and storage. Upstairs, the property comprises three bedrooms—two doubles and a single—alongside a family bathroom and landing area. The layout is functional and well-suited to family living, with natural flow and clearly defined spaces.

Outside: To the front, the property benefits from a low-maintenance yard enclosed by a brick wall, with a pleasant green area running along the row of houses—adding a touch of greenery to the urban setting. At the rear, a private yard offers additional outdoor space, ideal for storage or leisure. The property sits within a terrace of characterful homes, each with its own distinct façade.

Location: Situated in DN32, the property enjoys a convenient location within Grimsby, close to local amenities, schools, and transport links. The area is popular with renters, making this a ready-made investment opportunity. The property is being sold with a tenant in situ, currently generating £7,830 per annum, with reliable long-term tenants already in place. Bullets - Sold with tenant in situ, generating £7,830 per annum

 

Council Tax Band: A

Floorplan for Grimsby, NE Lincolnshire
EPC for Grimsby, NE Lincolnshire
Key Features
  • • Sold with tenant in situ, generating £7,830 per annum
  • • Two spacious reception rooms and a large kitchen
  • • Three bedrooms and a family bathroom upstairs
  • • Front and rear yards for private outdoor use
  • • Green area running along the front of the terrace
  • • Convenient DN32 location close to shops and transport links
Property Description
Inside: This well-proportioned two-storey home offers a practical and inviting layout ideal for long-term rental investment. The ground floor features a welcoming hallway leading to two spacious reception rooms, providing flexible living and dining arrangements. A generously sized kitchen spans the rear of the property, offering ample workspace and storage. Upstairs, the property comprises three bedrooms—two doubles and a single—alongside a family bathroom and landing area. The layout is functional and well-suited to family living, with natural flow and clearly defined spaces. Outside: To the front, the property benefits from a low-maintenance yard enclosed by a brick wall, with a pleasant green area running along the row of houses—adding a touch of greenery to the urban setting. At the rear, a private yard offers additional outdoor space, ideal for storage or leisure. The property sits within a terrace of characterful homes, each with its own distinct façade. Location: Situated in DN32, the property enjoys a convenient location within Grimsby, close to local amenities, schools, and transport links. The area is popular with renters, making this a ready-made investment opportunity. The property is being sold with a tenant in situ, currently generating £7,830 per annum, with reliable long-term tenants already in place. Bullets - Sold with tenant in situ, generating £7,830 per annum
Floorplan for Grimsby, NE Lincolnshire
EPC for Grimsby, NE Lincolnshire

Sign up to our Newsletter

By clicking submit , you agree to our Terms & Conditions and Privacy Policy .