Under Offer
A truly stunning Grade II Listed Georgian property steeped in local history. Thoughtfully renovated by the current owners to create an exceptional home that effortlessly balances its wealth of original character and period features to suit the needs of modern family living.

6 Bed Detached house For Sale Freehold

£550,000

Crowle, North Lincolnshire

  • 6
  • 3
  • 6
Key Features
  • Grade II Listed Georgian Hall
  • Fully Renovated for Modern Multi-Generational Living
  • Three Reception Rooms with Period Fireplaces
  • Dual Aspect Sitting Room with Original Shutters
  • Top Floor Self-Contained Apartment
  • Family Room with Bi-Fold Doors
  • Oak Framed Carport and Summer House
  • Private Courtyard Style Garden
Property Description
Step Inside

The first hint of how special this property begins at the centrally positioned front period solid wood door -this deeply recessed six fielded-panel door in plain reveal has a large Gothic overlight and is highlighted within the property’s listed status. Once inside, an impressive reception hall gives a captivating welcome drawing attention to the period staircase rising towards a striking arched window, immediately setting the tone for the property’s refined heritage and timeless charm.

Flanking the entrance are two stunning reception rooms. The principal sitting room enjoys a dual aspect with original shutters and centres around a traditional feature fireplace, creating a wonderfully light yet intimate living space—perfect for relaxed evenings or welcoming guests. The formal dining room has been beautifully finished and features an open fire set within a stunning fireplace with marble inset—providing an elegant setting for family gatherings and entertaining alike.

The kitchen seamlessly blends modern convenience with traditional styling, offering a range of cream-coloured units housing high quality fitted appliances. A large central island with granite work surfaces provides a striking contrast against the original recessed cupboards, creating a sociable space at the heart of the home for both cooking and everyday living.

Adjoining the kitchen is a generous family room with bi-fold doors that invite the outside in, effortlessly connecting internal and external spaces. A deep recessed fireplace housing a cast multi-fuel burner makes this a welcoming space to relax throughout the seasons, whether enjoying summer evenings with the doors open or cosy winter nights beside the fire. A practical and spacious utility/boot room leads off the family room with door to the courtyard garden which is a practical space ideal for drying washing and a safe space for the family pet.

The family room area is thought to be the original part of the house also houses a staircase to the first-floor inner landing which serves a bedroom into the main part of the house and a door opens into a generously proportioned room running the across the whole area above the below family room and utility. This flexible room is currently used as a games and leisure area ideal as such due to the expansive space on offer, able to easily accommodate a pool table and a separate gaming/television area—depending on a family’s needs this could provide a dedicated studio/home office.

Completing the ground floor is a tastefully decorated study/snug and a large cloakroom fitted with a period styled two-piece suite to include a high flush Excelsior cistern.

The property also benefits from a barrel ceilinged cellar accessed from the central reception hall

First Floor

The first-floor features four bedrooms, including two traditionally more spacious forward-facing formal bedrooms. One of these has been elevated to serve as the principal, benefitting from a thoughtfully designed en-suite shower room and an adjacent walk-in wardrobe perfect as a separate dressing area, perfectly tailored to meet the expectations of modern living in a property of this calibre. Bedroom three is a side facing room with a door to an inner landing to the games room. A fourth bedroom to this floor is currently utilised by the owners as a dressing room. These rooms are served by a luxurious family bathroom, fitted with a traditional styled suite incorporating a modern wet room shower and a double ended roll top bath with freestanding taps—providing a space in which to unwind and relax.

Second Floor

The second floor has been converted into an incredible, spacious loft style apartment comprising of an open plan living, dining and kitchen, a double bedroom five and a smaller sixth bedroom and the modern bathroom has a three-piece bathroom to include a P-shaped bath with shower over. Rich in character, this delightful space features exposed beams, timber structures and far-reaching views over the town’s rooftops, offering independent yet connected living for extended family or guests.

Step Outside

Externally, the property occupies a prominent position within the town, set slightly raised from the road. Double electric gates open to the side, giving access to a gravel driveway and an oak framed carport with integrated summer house. An area laid to lawn, raised beds and a broad stone flagged patio create a private courtyard style garden, ideal for entertaining. The bi-fold doors from the family room further enhance the superb indoor-outdoor experience, making this a wonderful space for both relaxation and social gatherings.

 

Council Tax Band: E

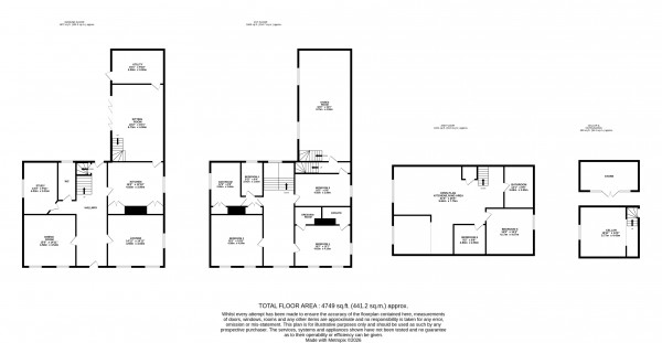
Floorplan for Crowle, North Lincolnshire
EPC for Crowle, North Lincolnshire
Key Features
  • • Grade II Listed Georgian Hall
  • • Fully Renovated for Modern Multi-Generational Living
  • • Three Reception Rooms with Period Fireplaces
  • • Dual Aspect Sitting Room with Original Shutters
  • • Top Floor Self-Contained Apartment
  • • Family Room with Bi-Fold Doors
  • • Oak Framed Carport and Summer House
  • • Private Courtyard Style Garden
Property Description
Step Inside The first hint of how special this property begins at the centrally positioned front period solid wood door -this deeply recessed six fielded-panel door in plain reveal has a large Gothic overlight and is highlighted within the property’s listed status. Once inside, an impressive reception hall gives a captivating welcome drawing attention to the period staircase rising towards a striking arched window, immediately setting the tone for the property’s refined heritage and timeless charm. Flanking the entrance are two stunning reception rooms. The principal sitting room enjoys a dual aspect with original shutters and centres around a traditional feature fireplace, creating a wonderfully light yet intimate living space—perfect for relaxed evenings or welcoming guests. The formal dining room has been beautifully finished and features an open fire set within a stunning fireplace with marble inset—providing an elegant setting for family gatherings and entertaining alike. The kitchen seamlessly blends modern convenience with traditional styling, offering a range of cream-coloured units housing high quality fitted appliances. A large central island with granite work surfaces provides a striking contrast against the original recessed cupboards, creating a sociable space at the heart of the home for both cooking and everyday living. Adjoining the kitchen is a generous family room with bi-fold doors that invite the outside in, effortlessly connecting internal and external spaces. A deep recessed fireplace housing a cast multi-fuel burner makes this a welcoming space to relax throughout the seasons, whether enjoying summer evenings with the doors open or cosy winter nights beside the fire. A practical and spacious utility/boot room leads off the family room with door to the courtyard garden which is a practical space ideal for drying washing and a safe space for the family pet. The family room area is thought to be the original part of the house also houses a staircase to the first-floor inner landing which serves a bedroom into the main part of the house and a door opens into a generously proportioned room running the across the whole area above the below family room and utility. This flexible room is currently used as a games and leisure area ideal as such due to the expansive space on offer, able to easily accommodate a pool table and a separate gaming/television area—depending on a family’s needs this could provide a dedicated studio/home office. Completing the ground floor is a tastefully decorated study/snug and a large cloakroom fitted with a period styled two-piece suite to include a high flush Excelsior cistern. The property also benefits from a barrel ceilinged cellar accessed from the central reception hall First Floor The first-floor features four bedrooms, including two traditionally more spacious forward-facing formal bedrooms. One of these has been elevated to serve as the principal, benefitting from a thoughtfully designed en-suite shower room and an adjacent walk-in wardrobe perfect as a separate dressing area, perfectly tailored to meet the expectations of modern living in a property of this calibre. Bedroom three is a side facing room with a door to an inner landing to the games room. A fourth bedroom to this floor is currently utilised by the owners as a dressing room. These rooms are served by a luxurious family bathroom, fitted with a traditional styled suite incorporating a modern wet room shower and a double ended roll top bath with freestanding taps—providing a space in which to unwind and relax. Second Floor The second floor has been converted into an incredible, spacious loft style apartment comprising of an open plan living, dining and kitchen, a double bedroom five and a smaller sixth bedroom and the modern bathroom has a three-piece bathroom to include a P-shaped bath with shower over. Rich in character, this delightful space features exposed beams, timber structures and far-reaching views over the town’s rooftops, offering independent yet connected living for extended family or guests. Step Outside Externally, the property occupies a prominent position within the town, set slightly raised from the road. Double electric gates open to the side, giving access to a gravel driveway and an oak framed carport with integrated summer house. An area laid to lawn, raised beds and a broad stone flagged patio create a private courtyard style garden, ideal for entertaining. The bi-fold doors from the family room further enhance the superb indoor-outdoor experience, making this a wonderful space for both relaxation and social gatherings.
Floorplan for Crowle, North Lincolnshire
EPC for Crowle, North Lincolnshire

Sign up to our Newsletter

By clicking submit , you agree to our Terms & Conditions and Privacy Policy .