Under Offer
A stylish and spacious modern home in a sought-after coastal village—perfectly positioned for contemporary living and community charm. Own 40% and enjoy 100% of the lifestyle. PLEASE NOTE THERE IS ALSO THE OPTION TO BUY THIS PROPERTY FREEHOLD - NOT SHARED OWNERSHIP AT £240,000

3 Bed Semi-detached house For Sale Leasehold

£96,000

Humberston

  • 3
  • 2
  • 1
Key Features
  • Offered with 40% shared ownership
  • Three bedrooms including ensuite to main bedroom
  • Stylish kitchen-diner with garden access and separate utility room
  • Contemporary bathroom and downstairs WC
  • Private driveway and enclosed rear garden
  • Located in a well-connected coastal village near Grimsby and Cleethorpes
Property Description
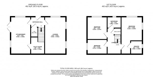
PLEASE NOTE THERE IS THE OPTION TO BUY THIS PROPERTY FREEHOLD - NOT SHARED OWNERSHIP AT £240,000 PLEASE CALL OUR OFFICE FOR FURTHER DETAILS Step Inside This beautifully presented detached home on Alder Avenue offers a generous and well-balanced layout across two floors, ideal for modern family life. The ground floor welcomes you with a bright entrance hall leading to a spacious lounge and a sleek kitchen-diner with direct access to the rear garden. A separate utility room adds practicality, while a downstairs WC enhances convenience. Upstairs, three well-proportioned bedrooms include a main bedroom with ensuite shower room, alongside a contemporary family bathroom and ample storage throughout.

Step Outside To the front, the property enjoys a neat landscaped setting with a covered porch and private parking. The rear south facing garden is accessible via patio doors from the kitchen-diner, offering a secure and sunny outdoor space ideal for relaxing or entertaining. The home is part of a well-maintained residential development with a peaceful suburban feel.

Location – Alder Avenue, Humberston, Grimsby, DN36 Located in the highly desirable village of Humberston, this property benefits from a coastal lifestyle with excellent local amenities. Families will appreciate the proximity to well-regarded schools, while commuters enjoy easy access to Grimsby town centre and Cleethorpes seafront. The area offers a blend of countryside walks, beachside leisure, and a strong sense of community. With nearby shops, eateries, and transport links, Humberston combines convenience with charm—making it one of North East Lincolnshire’s most sought-after postcodes.

60% rent share £319.28pcm

 

Council Tax Band: B

Floorplan for Humberston
EPC for Humberston
Key Features
  • • Offered with 40% shared ownership
  • • Three bedrooms including ensuite to main bedroom
  • • Stylish kitchen-diner with garden access and separate utility room
  • • Contemporary bathroom and downstairs WC
  • • Private driveway and enclosed rear garden
  • • Located in a well-connected coastal village near Grimsby and Cleethorpes
Property Description
PLEASE NOTE THERE IS THE OPTION TO BUY THIS PROPERTY FREEHOLD - NOT SHARED OWNERSHIP AT £240,000 PLEASE CALL OUR OFFICE FOR FURTHER DETAILS Step Inside This beautifully presented detached home on Alder Avenue offers a generous and well-balanced layout across two floors, ideal for modern family life. The ground floor welcomes you with a bright entrance hall leading to a spacious lounge and a sleek kitchen-diner with direct access to the rear garden. A separate utility room adds practicality, while a downstairs WC enhances convenience. Upstairs, three well-proportioned bedrooms include a main bedroom with ensuite shower room, alongside a contemporary family bathroom and ample storage throughout. Step Outside To the front, the property enjoys a neat landscaped setting with a covered porch and private parking. The rear south facing garden is accessible via patio doors from the kitchen-diner, offering a secure and sunny outdoor space ideal for relaxing or entertaining. The home is part of a well-maintained residential development with a peaceful suburban feel. Location – Alder Avenue, Humberston, Grimsby, DN36 Located in the highly desirable village of Humberston, this property benefits from a coastal lifestyle with excellent local amenities. Families will appreciate the proximity to well-regarded schools, while commuters enjoy easy access to Grimsby town centre and Cleethorpes seafront. The area offers a blend of countryside walks, beachside leisure, and a strong sense of community. With nearby shops, eateries, and transport links, Humberston combines convenience with charm—making it one of North East Lincolnshire’s most sought-after postcodes. 60% rent share £319.28pcm
Floorplan for Humberston
EPC for Humberston

Sign up to our Newsletter

By clicking submit , you agree to our Terms & Conditions and Privacy Policy .